
Design
The Concept & Design development is where a concept is developed for the general layout of rooms, sizes, and relationship of the project to the site, sun, water and views. Upon completion of this phase there are preliminary floor plans, and exterior views of the project that will reasonably represent the appearance and character of the project. In this phase we also welcome and collect any information on the interior finishes, styles, magazine clippings and much more.

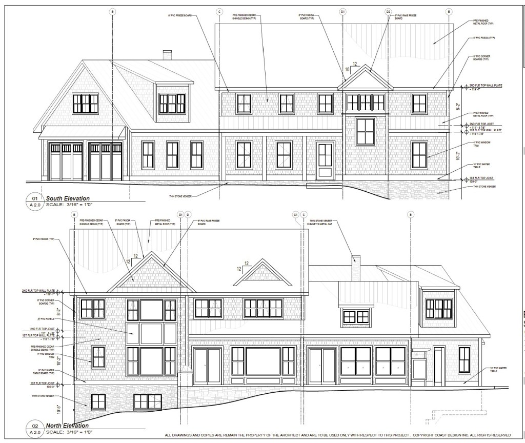
Construction Documents
Once the work from the Concept Design has been developed and approved, we begin to create a comprehensive and detailed set of construction documents for the Architectural design which will form the basis for the construction of the project. These drawings also the basis of the contract between the Owner and Builder. Upon completion of the Construction Documents, the drawings are stamped by the Architect and be ready to tender to multiple contractors and construction can begin straight away.

Project Management & Contract Administration
This final phase of construction includes applying for Building permits, finding and securing a General Contractor through a tendering process, visiting the construction site on a regular basis, certifying payments, reviewing shop drawings, managing the contract administration and resolving questions and issues as they arise on site, to creating the final deficiency lists. Coast Design will manage any project from start to finish.
